brand logo
  • Nemovitosti
  • Kontakt
  • Přidat nemovitost
  • Nemovitosti
  • Kontakt
Přidat nemovitost

Prodej pozemku 97 000 m², Arezzo, Itálie , možná zastavěnost na pozemku je 900 m²

Itálie | Arezzo

399 000 EUR (za nemovitost)

Elite Garden Resedence.

Nabízíme k prodeji 97.000 m² pozemku v centrálním Toskánsku, na kterém se nachází ruina z přelomu 17 a 18 století.
Pozemek je téměř celý zalesněn ( převážně dubem ) a je možné ho ve dvacetiletých

cyklech vytěžit. Na hranici pozemku je přiveden kabel na připojení elektřiny a vrtaná studna o hloubce 96 metrů s velmi kvalitní vodou.

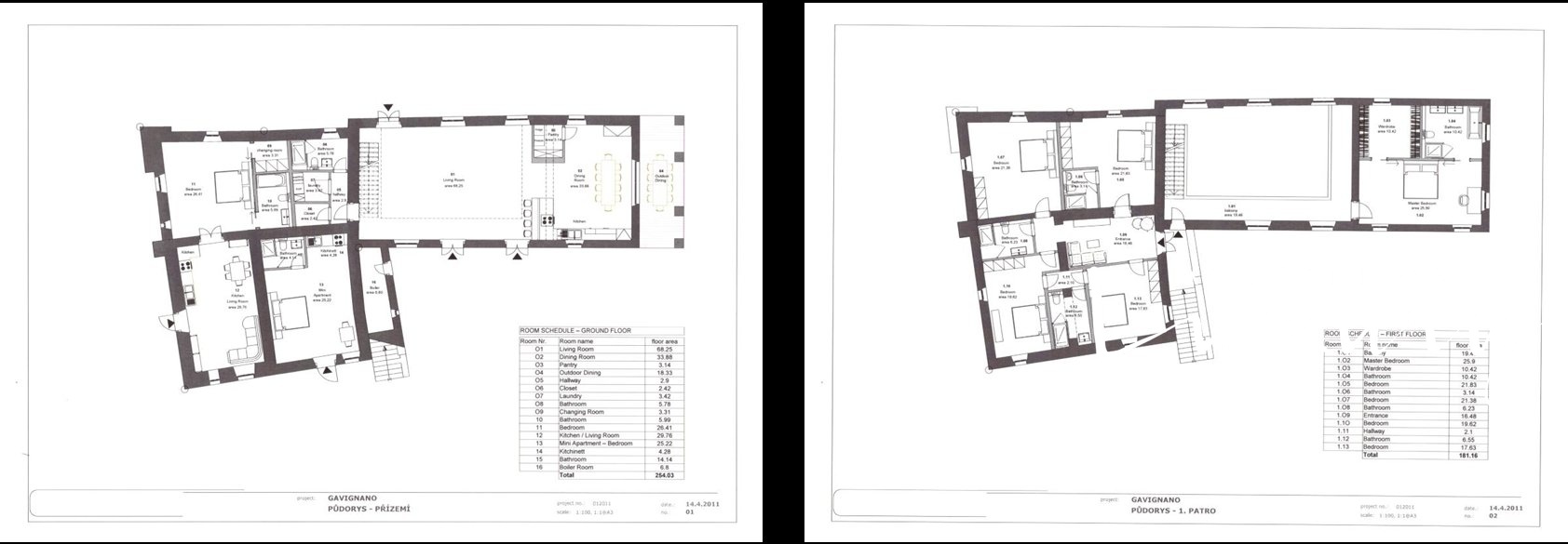
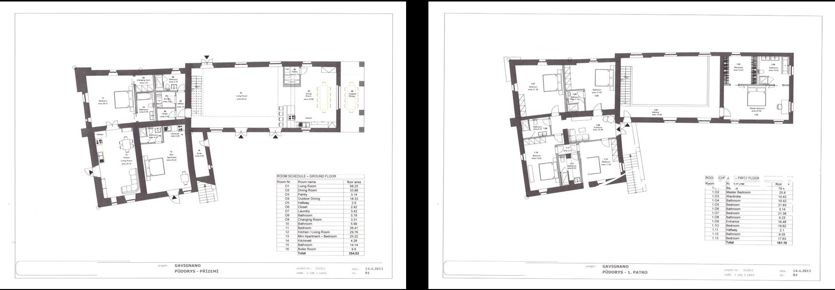
Na stavbu domu je zpracována studie s přípravou na stavební povolení. Místní regulativ umožnuje zastavěnou plochu 900 m² a možnost úpravy studie na čtyři bytové jednotky. Styl nemovitosti zachovává klasickou Toskánskou architekturu, při poskytnutí maximální míry současné úrovně komfortu, včetně bazénu

Projekt byl vytvořen místním architektonickým studiem z Arezza, které je schopno zajistit celkovou realizaci projektu.

V případě zájmu jsem vám plně k dispozici.

Podrobné informace.

  • Cena: 399 000 EUR (za nemovitost)
  • Číslo zakázky:REALITYMIX-29758
  • Celková plocha:97 000 m2
  • Druh pozemku:pro bydlení
gallery image
gallery image
gallery image
gallery image
Gavignano - pohled 1 Gavignano pohled 4  IMG_2a Snímek Gavignano 5 Snímek Gavignano 6 Snímek Gavignano 1 Snímek Gavignano 4 Snímek Gavignano 2 Snímek Gavignano 3 studie_pohled Gavignano studie_pudorys_200 Gavignano

Kontaktujte makléře nemovitosti.

Tomáš Klinka

+420 604 400 833
tomas.klinka@kwcz.cz

Potřebujete poradit nebo se na něco zeptat?

Nejnovější.

Orchid Casel de Paradise.
camera icon22
Prodej

Luxusní apartmán s horskou atmosférou – investiční příležito ...

Polsko, Województwo śląskie

  • 69 m2
  • 1 / 1
  • Cena: 6 883 000 Kč (za nemovitost)
Orchid Casel de Paradise.
camera icon7
Prodej

Prodej 2 apartmánů 2+kk , durres, Albánie ...

Albánie, durres

  • 110 m2
  • 3 / 1
  • Cena: 110 000 EUR (za nemovitost)
Orchid Casel de Paradise.
camera icon16 camera icon01
Prodej

Prodej, Byt 2+kk, 70m², Nassfeld ...

Rakousko, Nassfeld

  • 70 m2
  • 2 / 5
  • Cena: 340 000 EUR (za nemovitost)
Orchid Casel de Paradise.
camera icon12 camera icon01
Prodej

Prodej, Byt 3+1, 55m², Rakousko - Nassfeld ...

Rakousko, Nassfeld

  • 55 m2
  • 1 / 2
  • Cena: 300 000 EUR (za nemovitost)
footer logo

Další služby.

  • iRest.cz
  • Web realitní kanceláře
  • Web Makléře
  • Web nemovitosti

 

  • RMIX MLS
  • Realitní balíček
  • RealityMIX.cz
  • Dalten.cz

O EstateMIX.

  • O EstateMIX.cz
  • Cookies
  • Ochrana osobních údajů

© 1999—2026 DALTEN media s.r.o
Provozovatelem serveru EstateMIX.cz je DALTEN media s.r.o., se sídlem Na Harfě 916/9a, Vysočany, 190 00 Praha 9.
IČ: 27135306, zapsaná v obchodním rejstříku vedeném Městským soudem v Praze, oddíl C, vložka 98915.