brand logo
  • Nemovitosti
  • Kontakt
  • Přidat nemovitost
  • Nemovitosti
  • Kontakt
Přidat nemovitost

Moderní řadové domy 4+kk (3 ložnice), 140 – 150 m², zahrady, terasy a solária, pěší dostupnost pláže

Španělsko | Rincon de la Victoria

545 000 EUR (za nemovitost)

Elite Garden Resedence.

Již 22 let jsme našim klientům spolehlivým průvodcem světem realit. Přinášíme Vám jedinečnou příležitost vlastnit moderní rodinný dům v atraktivní lokalitě východní části Costa del Sol, v pěší dostupnosti pláže.

Ceny jednotlivých domů začínají od 545 000 EUR + 10 % DPH (celková cena cca 599 500 EUR).

Klientům poskytujeme kompletní bezplatný servis a jsme Vaším spolehlivým partnerem po celý proces koupě – od výběru nemovitosti na míru až po její předání. Samozřejmostí je také poprodejní asistence včetně zajištění správy nemovitosti prostřednictvím prověřených, česky mluvících partnerů přímo ve Španělsku. Díky detailní znalosti místního trhu i právního prostředí probíhá celý proces bezpečně, transparentně a bez zbytečných komplikací.
Prohlídky a kompletní servis na místě zajišťujeme ve spolupráci s naším ověřeným lokálním partnerem. Spolupracujeme mimo jiné s Ing. Magdalenou Šedovou, která se podílí na zajištění klientského servisu ve Španělsku.

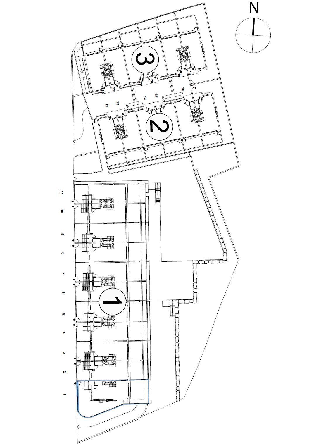
Jedná se o moderní rezidenční soubor celkem 23 řadových rodinných domů, který klade důraz na soukromí, kvalitu provedení a příjemné prostředí pro každodenní život i rekreaci. Lokalita nabízí ideální kombinaci klidného bydlení, blízkosti moře a výborné dostupnosti – centrum Málagy i mezinárodní letiště jsou vzdáleny přibližně 30 minut jízdy.

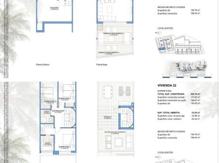
Nabízené domy jsou navrženy s důrazem na funkčnost, komfort a maximální využití přirozeného světla. Dispozice 4+kk (3 ložnice) nabízí dostatek prostoru pro rodinné bydlení i rekreaci. Celková užitná plocha se pohybuje přibližně mezi 140–150 m², přičemž celková zastavěná plocha dosahuje cca 170–200 m² v závislosti na konkrétní jednotce.

Velkorysé venkovní prostory zahrnují terasy o ploše cca 30–40 m², soukromé zahrady přibližně 40–60 m² a střešní solárium o velikosti až kolem 50 m², které poskytuje ideální prostor pro relaxaci, grilování i celodenní pobyt na slunci. Jednotlivé domy se liší velikostí pozemku, orientací i umístěním v rámci projektu, což se odráží i v cenovém rozpětí.

Domy jsou řešeny jako třípodlažní se suterénem a střešním soláriem. V přízemí se nachází prostorný obývací pokoj s kuchyňským koutem a přímým vstupem na terasu a zahradu, které přirozeně propojují interiér s exteriérem. Součástí přízemí je také samostatné WC.

V horním patře jsou situovány tři ložnice a dvě koupelny, které poskytují dostatek soukromí pro rodinné bydlení. Dominantou každého domu je střešní solárium, které nabízí ideální prostor pro relaxaci a zároveň otevřené výhledy do okolí a směrem k pobřeží.

Velkým benefitem je také vlastní garáž a další samostatný prostor, který lze využít jako sklad, pracovnu, fitness nebo volnočasovou místnost.
Standard odpovídá moderním nárokům na komfortní a úsporné bydlení. Součástí je plně vybavená kuchyňská linka s vestavěnými spotřebiči, klimatizace a moderní tepelné čerpadlo (aerotermie) pro efektivní vytápění i ohřev vody. Důraz je kladen také na kvalitní tepelnou a zvukovou izolaci, hliníková okna s přerušeným tepelným mostem, dvojité zasklení a použití moderních materiálů.

Rezidenční areál je uzavřený a klade důraz na bezpečnost a soukromí. K dispozici je bazén s přelivovou hranou (infinity efekt) a pečlivě upravené společné zahrady, které vytvářejí příjemné prostředí pro relaxaci a odpočinek.

Zahájení výstavby je plánováno na 2. čtvrtletí roku 2026, dokončení projektu se předpokládá ve 4. čtvrtletí roku 2027 (termíny jsou orientační).
Tato nabídka představuje ideální volbu jak pro vlastní bydlení, tak pro investici s potenciálem dlouhodobého zhodnocení. Costa del Sol je dlouhodobě synonymem vysokého standardu, bezpečí a kvalitní infrastruktury, což zajišťuje stabilní hodnotu Vaší investice.

Objevte místo, kde se kvalita života stává standardem a kde se rozhodnutí o pořízení nemovitosti promění v promyšlený krok směrem k výjimečnému životnímu stylu.

Rádi Vám pomůžeme najít nemovitost, která bude odpovídat Vašim představám o ideálním místě pro život, odpočinek i budoucí generace.
Nabízíme také široké spektrum dalších nemovitostí v oblasti Costa del Sol, které Vám rádi na vyžádání zašleme nebo dle Vašich individuálních kritérií aktivně vyhledáme.

Podrobné informace.

  • Cena: 545 000 EUR (za nemovitost)
  • Poznámka:+ 10 % DPH
  • Číslo zakázky:REALITYMIX-N00005
  • Poloha objektu:řadový
  • Druh objektu:cihlová
  • Stav objektu:projekt
  • Počet podlaží v objektu:3
  • Typ domu:patrový
  • Zastavěná plocha:72 m2
  • Užitná plocha:148 m2
  • Plocha parcely:100 m2
  • Plocha zahrady:25 m2
  • Umístění objektu:klidná část obce
  • Doprava:silnice; MHD; autobus
  • Elektřina:Elektro - 230 V
  • Voda:Vodovod
  • Telekomunikace:Telefon; Internet
  • Topení:Ústřední - elektrické
  • Odpad:Kanalizace
  • Ostatní rozvody:Kabelová televize
  • Energetická náročnost budovy:B - Velmi úsporná
  • Energetický ukazatel
    podle vyhlášky:
    č. 264/2020 Sb.
  • Plocha zahrady:25 m2
  • Předzahrádka:100 m2
gallery image
gallery image
gallery image
gallery image

Kontaktujte makléře nemovitosti.

Ing. Petr Strnad

235 363 230
737 384 509
strnad@sephira-group.cz

Potřebujete poradit nebo se na něco zeptat?

Nejnovější.

Orchid Casel de Paradise.
camera icon29
Prodej

2+kk s terasou v horách Andalusie, jen 25 min od moře – Cost ...

Španělsko, Malaga

  • 46 m2
  • 1 / 3
  • Cena: 138 000 EUR (za nemovitost)
Orchid Casel de Paradise.
camera icon31
Prodej

Moderní řadové domy 4+kk (3 ložnice), 140 – 150 m², zahrady, ...

Španělsko, Malaga

  • 148 m2
  • 100 m2
  • Cena: 545 000 EUR (za nemovitost)
Orchid Casel de Paradise.
camera icon26
Prodej

Moderní apartmány 2+kk až 4+kk, terasa, garáž, bazén, 3 min ...

Španělsko, Malaga

  • 50 m2
  • 1 / 3
  • Cena: 215 000 EUR (za nemovitost)
Orchid Casel de Paradise.
camera icon15
Prodej

Moderní apartmán 3+kk s terasou a garážovým stáním – Torrox ...

Španělsko, Malaga

  • 64 m2
  • 1 / 4
  • Cena: 328 000 EUR (za nemovitost)
footer logo

Další služby.

  • iRest.cz
  • Web realitní kanceláře
  • Web Makléře
  • Web nemovitosti

 

  • RMIX MLS
  • Realitní balíček
  • RealityMIX.cz
  • Dalten.cz

O EstateMIX.

  • O EstateMIX.cz
  • Cookies
  • Ochrana osobních údajů

© 1999—2026 DALTEN media s.r.o
Provozovatelem serveru EstateMIX.cz je DALTEN media s.r.o., se sídlem Na Harfě 916/9a, Vysočany, 190 00 Praha 9.
IČ: 27135306, zapsaná v obchodním rejstříku vedeném Městským soudem v Praze, oddíl C, vložka 98915.